单身公寓设计图纸,新中式55㎡单身公寓设计图纸
随着小户型公寓的增多,越来越多的单身公寓展现在我们身边,而个性化时代的来临,意味着人们度已于单身公寓的设计要求越来越高,更加注重个性化与创意。下面品索教育分享新中式55㎡单身公寓设计图纸,同时在文末给大家带来福利资源,单身公寓户型设计全景效果图合集,供大家欣赏和参考!
新中式风格在设计上延续了明清时期家居配饰理念,提炼了其中经典元素并加以简化和丰富,在家具形态上更加简洁清秀,同时又打破了传统中式空间布局中等级、尊卑等文化思想,空间配色上也更为轻松自然。
新中式55㎡单身公寓设计图纸
看到中式大多数人会想到古典、庄重,对于80、90后的我们很少会选择中式风格,于是新中式就成了我们的新选择,这套55平方的小家,在卧室、客厅和餐厅中,都带有新中式风的感觉,具体是怎样的,一起看看!
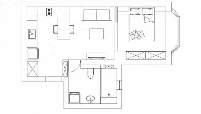
新中式55㎡单身公寓设计图纸平面布置图

入户过了玄关就是开放式的厨房和吧台餐桌,厨房主要以简约风为主,地砖和墙砖都是选择了偏灰色的款式。

小吧台的餐厅通过椅子、桌旗和小配件来展现新中式的风范。

餐厅过去就是一个小客厅,客厅再过去就是卧室,卧室和客厅之间有装磨砂彩色玻璃推拉门,隐私可以得到保障。

以吧台为界,明确的划分了客厅和厨房区域。

客厅的电视柜和茶几都是属于新中式的款式,有着独特的美感。

整个客厅、餐厅和厨房区域,整体的设计还是以简约为主,中式进行点缀。

卧室里最能体现出新中式风的就是这幅挂画,缥缈的山水画。

卧室还有一个小飘窗,可以看看外面的风景,另一边就是整墙大衣柜,满足收纳的需求。

卫生间的空间也是非常大,放得下大浴缸,洗手盆也是比较大的,还用镜子扩展了空间视觉。

文末附福利资源:单身公寓户型设计全景效果图








一般使用单身公寓的以都市白领为主要消费人群。这类人群大多为年轻人,有主见,有个性,有文化。所以在设计房子的时候不能千篇一律,需要简约而不简单。你觉得呢?
猜你喜欢
![]()